Добро пожаловать на http://vipplan.ru

Випплан Острогожск - это тысячи проектов домов в нашем каталоге!

Вы всегда сможете найти для себя проект дома вашей мечты! Даже если этого не случилось, мы готовы в любую минуту предложить проект индивидуального дома.

Забыли пароль?
Вы еще не регистрировались?

Перейдите по ссылке ниже на страницу регистрации.

Регистрация...

Внимание!!!

В проектную документацию могут быть внесены изменения любой сложности, в соответствии в Вашими пожеланиями!

Полезные статьи

Фундамент под гараж

Обычно фундаменты под гараж делаются из бетонного раствора и заливаются, как монолит. Гаражные фундаменты так же можно укладывать из бетона с применением бутового камня. Такие фундаменты тоже считаются монолитными. В этом случае происходит экономия бетона....

Свайно-ростверковый, буронабивной фундамент

Для объединения свай в общий фундамент устанавливают бетонные ростверки (железобетонные плиты). Устройство ростверка зависит от расположения, вида свай и конструкции здания. Ростверки могут быть монолитными, сборными или сборно-монолитными, также возможны безростверковые решения. ...

Проекты домов и коттеджей > Каталог проектов домов > Проект одноэтажного дома с подвалом и мансардой Vg1460

Проект одноэтажного дома с подвалом и мансардой Vg1460

Проект одноэтажного дома с подвалом и мансардой
Зарегистрируйтесь

Проект № Vg1460


Техническое описание
Общая площадь: 249.52 м2
Жилая площадь: 93.27 м2
Высота здания: 8.95 м
Размеры дома: 18.41м×14.28м
Кол-во комнат: 6
Цокольный этаж: есть
Гараж: нет
Мансарда: есть

Kонструкция
Фундамент: ленточный
Перекрытия: сборные ж/б плиты
Материал стен: Газобетон

Архитектурный раздел
Конструктивный раздел
Инженерный раздел
АР+КР - 64 000 (Со скидкой 20%)
АР+КР+ИР - 151 500 (Со скидкой 50%)
Проект индивидуального одноэтажного жилого дома с подвалом и мансардой с размерами здания 18,41 x 14,28 м. Наружная отделка здания – облицовочный кирпич и фасадная штукатурка. Фундамент – ленточный монолитный ж/б. Наружные стены – газобетонные блоки с утеплителем, воздушным зазором и отделкой облицовочным кирпичом и фасадной штукатуркой. Внутренние стены – газобетонные блоки. Перегородки – газобетонные блоки. Пол подвала – пол по грунту. Межэтажные перекрытия – сборные ж/б плиты перекрытия. Перемычки: монолитные ж/б. Крыша – двускатная. Кровля – металлочерепица. Окна – металлопластиковые. Лестница – монолитная ж/б и деревянная.
Генплан застройки участка / Паспорт проекта 7000 руб / 10000 руб
Инженерный раздел (полный) 87500 руб (125000 руб)
Смета на строительство 62500 руб
Теплотехнический расчет материалов стен Бесплатно
Стоимость проекта со незначительнми изменениями 73750 руб
Стоимость проекта со средними изменениями* 92500 руб
Стоимость проекта со значительными изменениями** 97500 руб

План цокольного этажа


Холл — 3,06 м2
Бойлерная - 11,22 м2
Помещение 1 - 11,45 м2
Помещение 2 - 16,12 м2
Помещение 3 - 11,16 м2
Помещение 4 - 9,10 м2
Подвал - 26,18 м2

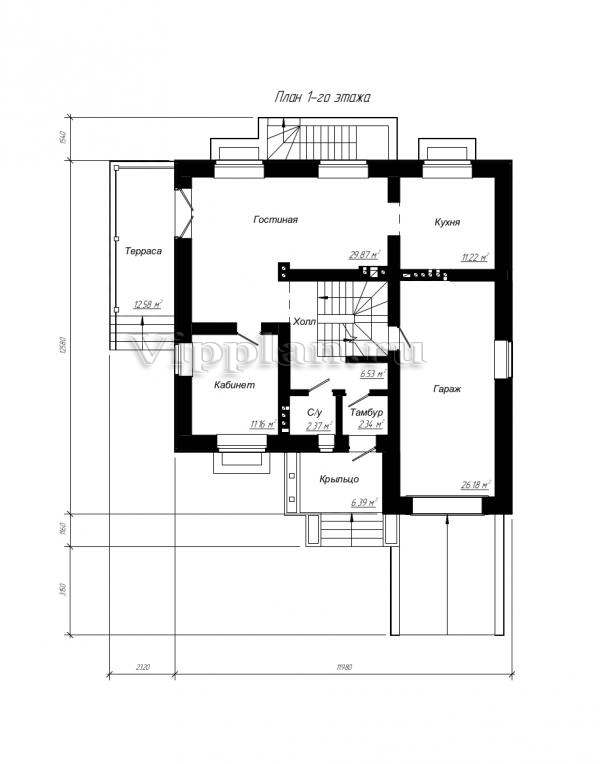
План первого этажа


Тамбур - 2,34 м2
Холл - 6,53 м2
С/у - 2,37 м2
Кабинет - 11,16 м2
Гостиная - 29,87 м2
Кухня - 11,22 м2
Гараж - 26,18 м2

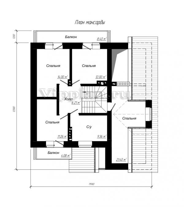
План мансардного этажа


Холл - 6,21 м2
Спальня - 14,98 м2
Спальня - 11,26 м2
Спальня - 14,00 м2
Спальня - 12,00 м2
С/у - 9,36 м2
Балкон - 2,52 м2
Балкон - 1,22 м2
Проект одноэтажного дома с подвалом и мансардой Проект одноэтажного дома с подвалом и мансардой Проект одноэтажного дома с подвалом и мансардой Проект одноэтажного дома с подвалом и мансардой

Модификации проектов

Внесение изменений и привязка к участку строительства

В любой из проектов от компании VIPplan - Острогожск по вашему желанию могут быть внесены изменения в материалы стен, материалы наружной отделки дома, а также будет произведена адаптация проекта под конкретный регион строительства (с учетом грунтов региона, геологических особенностей вашего участка и местных климатических условий) - БЕСПЛАТНО !!! (кроме проектов со скидкой и проектов наших партнеров).

Любой из проектов, размещенных на сайте ostrogojsk.vipplan.ru мы можем выполнить из требуемых вам строительных материалов: ячеистый бетон (газобетон, пеноблок), керамоблок, кирпич, шлакоблок, бетонный блок, дерево (брус, клееный брус), каркасная технология (деревянный каркас, металлокаркас (ЛСТК)).

Фасад дома и его наружную отделку так же возможно выполнить с применением различных облицовочных материалов: структурной штукатурки, (с утеплителем и без), сайдингом (пластиковый или металлосайдинг), фиброплитами, кирпича.

 
6 Избранные
проекты

Доставка проектов по России: Москва (Московская область), Санкт-Петербург (Ленинградская область), Краснодар, Ростов-на-Дону, Ставрополь, Сочи, Волгоград, Новосибирск, Белгород, Брянск, Воронеж, Саратов, Хабаровск, Астрахань, Нальчик, Владикавказ, Екатеринбург, Тюмень, Самара, Нижний Новгород, Казань, Пермь, Уфа, Челябинск, Красноярск, Ханты-Мансийск, Иркутск, Курган, Оренбург, Омск, Томск, Барнаул, Новокузнецк, Кемерово, Абакан, Чита, Якутск, Южно-Сахалинск, Петропавловск-Камчатский и страны ближнего зарубежья: Белоруссия, Украина, Казахстан